【案例欣赏】127㎡小复式,有生命的现代风格
这套2室2厅的小复式如果分割出二层中空部分,在二层可以多出一间房,秒变3室。

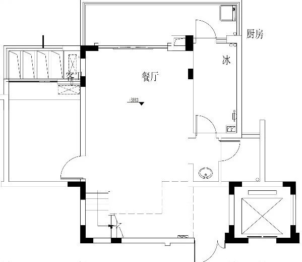
△一层原始平面图

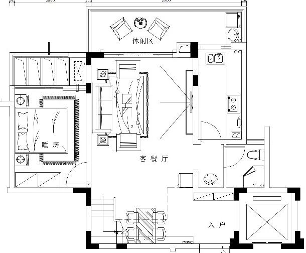
△一层平面布置图

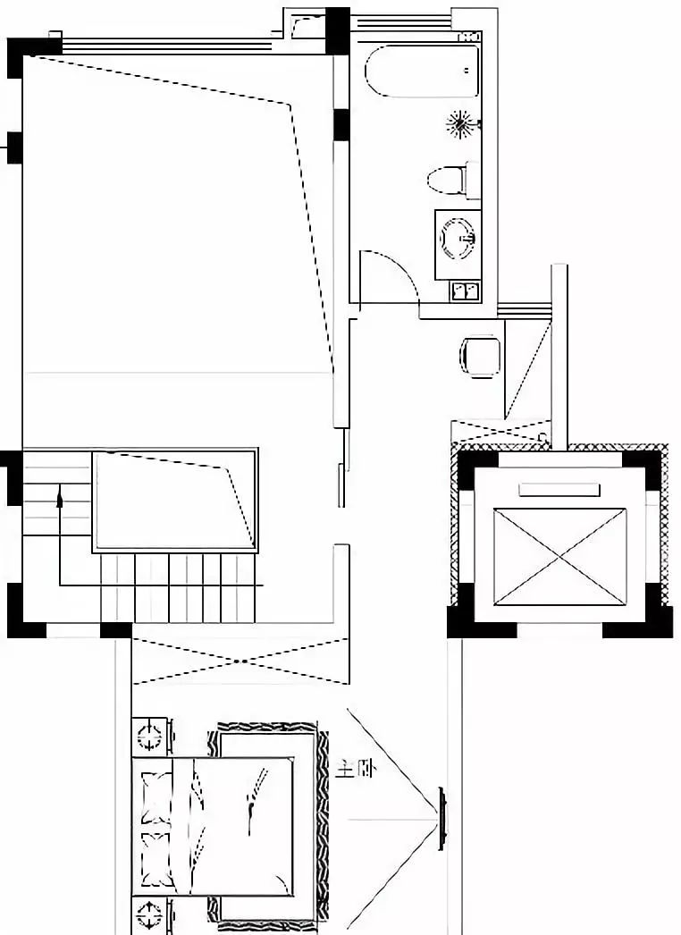
△二层平面布置图
布置说明
这套2室2厅的小复式如果分割出二层中空部分,在二层可以多出一间房,秒变3室。
对于对于部分家庭来说,3居室是刚需。
想拥有更好的居住感受,为了彻底体现复式洋房天生具备的通透感,所以在二层中空部分不作现浇分割处理,保留原始户型结构。
用相对浪费空间的方式来成全视觉享受,生活的美有时是需要放弃理性来实现的。
设计说明
小户型,在空间布置、色彩调和、家具搭配、饰品选择上,要经济适用,美观大方,温馨典雅。
现代风格比较追求个性化,让色彩跳跃出来,张扬而不夸张,是更多年轻人的选择。
◐ 客厅
回归自然,是每一个人内心深处的一种潜在的期望,现代人不能做到“扬长而去,遁迹山林”那样洒脱。但可以在自己生活的一方小小天地活出自己想要的样子。
现代风格的客厅设计,加上自然的元素,绿色提升了空间的生命感。

▲绿植摆设在金属网框置物架上,与圆柱体原木茶几相辉映,不拘一格,仿佛置身园林的感觉。


▲为节省空间考虑,设计黑色旋转楼梯,边上摆放绿植,别样的深邃感觉。
◐ 阳台区

▲民族风地毯

▲一个重要的休闲区域,小茶几、高级灰布艺小沙发,每个角落充满绿植,让每一刻都充满生机。
◐ 卧室

▲整墙壁柜到顶,用黑色饰条包边,整齐划一的舒服感。

▲超级有个性的一个角落,保留毛坯墙柱,不做任何装饰,旁边摆放复古油画。粗糙的美,也许是因为洞察了事物的本质。

▲柜子打开后

▲换个角度,依然是一种残缺的美。
◐ 厨房餐厅

▲餐厨一体,这盏吊灯让烟火气的厨房增添了一丝艺术感。

▲冰箱嵌进餐桌旁的壁柜里,旁边简洁的置物架上,是油盐酱醋茶,更是对生活的态度。
◐ 卫生间

▲放一张卫生间与阳台绿植的对比照,卫生间延续了简洁的设计思路。

▲洗漱台 & 鞋柜
房子不论大小,只要用心和好的设计来打造爱家,她就能呈现出你期待憧憬的模样














































































