室内设计快题表现解析!再也不怕考试了
室内设计快题表现
快题设计又称快速设计、快图设计。简单地说,就是在一定的时间范围内(一般为3~6个小时)完成设计方案构思、表现过程及展示成果,是室内设计过程中方案设计的一种表现形式。
这是一项手绘与设计的综合练习。每年各大高校的室内设计、环境艺术设计等艺术类专业的入学考试,都会通过各种不同方式的快题设计,来对考生手绘表现综合能力进行考查。
学习表现快题设计最重要的一点就是掌握制图的规范性和设计概念的整体性。接下来讲解的内容不仅有快题设计表现,也有制图的规范,这都是需要掌握的重点。
1. 制图规范
制图规范:主要包括尺寸标注、文字与比例、图标和线型。
a. 尺寸标注
b. 文字与比例
c. 图标
d. 线型


2. 平面图
在其表现平面图的过程中应注意制图的规范性,表现步骤如下。
步骤 01:确定比例。
根据要求,常用的比例有1:50或者1:100,这样的比例计算起来比较容易。
步骤 02:画出轴线。
在开始画平面图之前一定要先画轴线,确定出平面图规定大小。
步骤 03:根据轴线表现出墙体。
步骤 04:功能分区,添加家具。
步骤 05:给平面图勾线。
注意在用针管笔勾线时,要区分线条的粗细。柱子的线条最粗(针管笔0.8),其次是墙体的线条(针管笔0.5或者0.3),家具用最细的线条(0.1)。标注的线条不宜过粗,同一家具线条可用同一型号针管笔。这些是制图的规范,也是评判制图好坏的标准。
步骤 06:表现平面图颜色。
平面图的颜色其实相对于家具上色表现来说比较简单。一般柱子为深灰色(如马克笔CG9、BG9、WG9都可以),墙体的颜色比柱子略浅一些。
家具颜色可适当表现,不宜过深,用浅灰色表现家具阴影。地面颜色也一样,一般局部刻画表现一下即可,颜色不要画得过多、过满,否则画面会没有透气感。
3. 剖立面图
剖立面图的表现步骤跟平面图的表现步骤差不多,但是要注意的是剖立面图主要体现被剖墙体的结构细节,如被剖开墙体与窗户的结构、吊顶结构的细节等,在绘制时都需要把这些剖开的断面结构表现在画面当中。


4. 立面图
墙体的立面图主要体现墙体的装饰造型和家具装饰效果。
5. 天花图
天花图主要表现天花吊顶的灯位布局,最后用灯饰的符号配合文字来说明。
6. 人流动线图
人流动线图一般可以相对简单地表现,画出整体平面功能分区与布局,然后用实线或者虚线作为引导即可。

7. 空间效果图
空间效果图在快题设计中也十分重要,它可以让观者更直观地感受到设计的成果。
8. 文字
可根据设计的主题来选择题目字体的表现形式,字体要符合整体画面要求。
设计说明的文字一般可用宋体字表现,或者根据整体画面效果设计字体,但字迹要清晰、工整。要注意的是文字一定不能写得太随意,不然会给整体画面效果减分。
下面通过分析一些实际考试案例,帮助大家从案例中进一步学习室内设计快题表现的方法与技巧,并积累一些表现经验,将其转变为自己的设计表现手法。
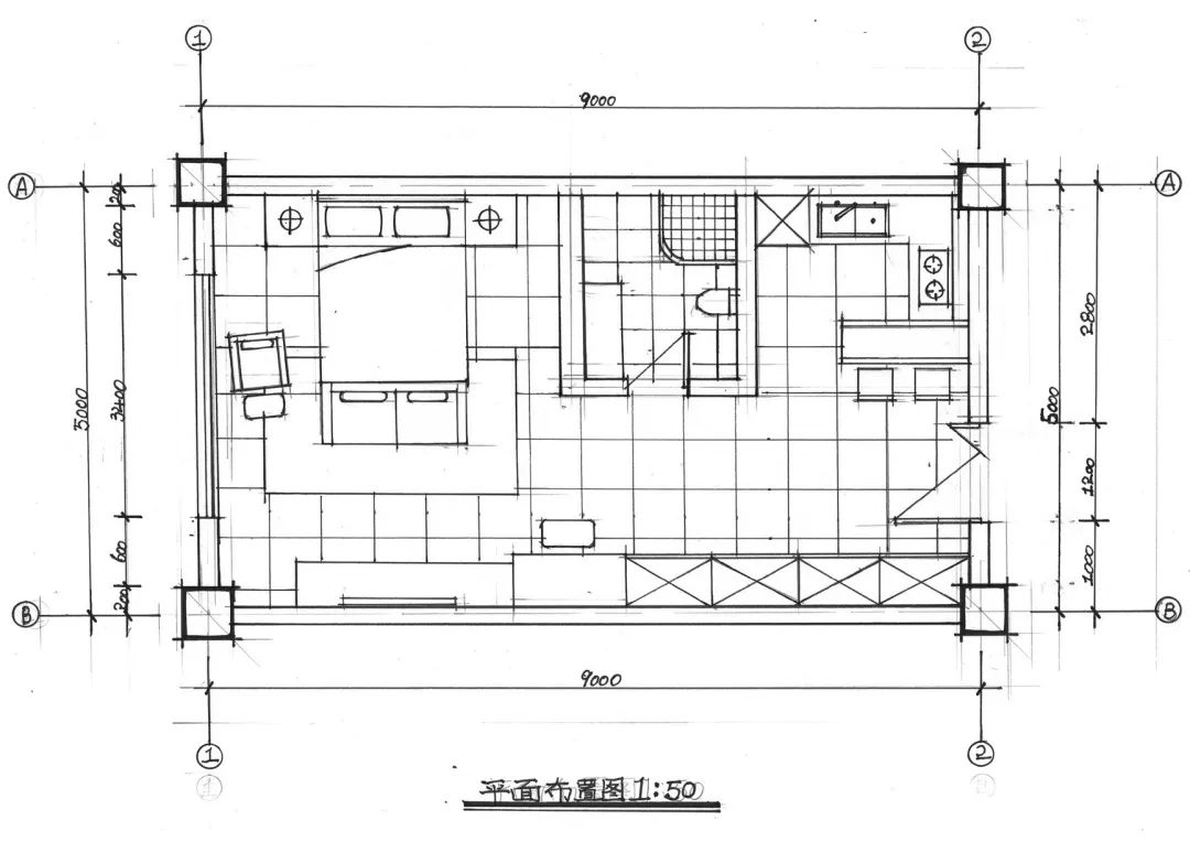
酒店式公寓快题设计案例
题目:酒店式公寓。
设计要求:本酒店为酒店式公寓,本空间为标准间设计,总面积45平方米 。酒店特色是让客人入住后能体会到家的感觉。还有一些长期出差办公人员,入住时间比较长,所以要求有独立的厨房,以供客人使用。风格自定,简洁而不失格调。功能设计合理,色调统一。
时间:3小时。设计要求展示出平面图、剖立面图、立面图、天花图和空间效果图。
案例展示:
床头墙面立面图:
采用了镜框和软包结合的装饰效果,镜面的造型不仅给整体空间增添了特色与亮点,还有意识地扩宽了空间视觉效果。
案例解析:
优点:
1.本方案设计较为完整,符合题目要求,区域划分合理,同时也满足了客人入住的一些功能需求。整体的衣柜中内嵌鞋柜,这种隐藏式设计既优化了视觉效果也节省了空间。开放式的厨房与吧台式餐厅相结合,方便、实用而不失格调。
2.在风格上做到了统一,整个空间色调给人以温馨的感觉。家具整体以实木色为主,和灰色地面形成空间呼应。
3.整张图纸构图稳定,版式设计按照合理的要求进行划分,透视效果做得比较好,增强了视觉冲击力,整体色调柔和均匀。
4.采用“上下呼应”的设计手法,使天花镜面的造型、主体背景墙和地面形成空间虚拟关系,创造出空间的围合感,增强了空间的识别度。
5.绘画效果完整。特别是效果图空间透视准确,颜色运用得当,明暗关系及色彩变化合理,技法娴熟。
不足:
1.要注意制图标注的规范性,图标不够全面,卫浴空间尺寸没有标注,平面图上的剖切符号没有体现出来,天花图的高度和造型尺寸没有标注。
2.电视背景墙细节设计上有待完善,整面墙体感觉有点空,不够饱满。
服装专卖店快题设计案例
题目:服装专卖店设计,面积为18m×18m的一个空间。
设计要求:本服装店经营国内服饰的高端品牌,包括男女服装、箱包和饰品等。服饰系列因时尚、简洁、款式新颖等特点得到消费者的青睐。
店面装修要求具有现代感,流线型空间造型,展示出前卫、时尚、高端的装饰风格。整体风格、色彩自定。
时间:3小时。画面要求展示出主立面图、平面图和空间效果图。案例展示
橱窗立面图:
橱窗整体背景墙用暖灰色大理石来表现,彩色挂饰为丝绸质感,红色球形装饰物给橱窗立面增添了新的颜色及亮点。
效果图:
案例解析:
优点:
1.装饰效果好。根据空间效果图可看出,整体的装饰效果做得比较饱满,墙面和地面展示区域安排合理,结合木饰面装饰造型,呈现出了比较好的装饰效果。
2.区域划分设计较为合理,在整个专卖店设计里,有休息区、展示区与收银区等功能区分,收银台的位置也比较突出,与后面背景LOGO造型构成空间的中心。
3.橱窗展示部分设计是整个专卖店的亮点,主次关系以及整个空间的层次关系控制得比较好。
4.流线型的设计有新颖的感觉,这种“流线型”设计又在无形中把空间天花、墙面、地面串联起来,形成一个整体。
5.画面排版设计符合题目与设计要求,有一定的整体控制能力。
6.制图中平面图的标注做得较好,完整、规范。
不足:
1.在制图的规范细节方面还可以加强,如立面图标高的部分,可增加一些剖立面图的结构展示,增强整个设计的制图感。展柜立面图没有标注相对应的材质说明。
2.设计说明不够完整。可在设计说明里面增加对空间功能的说明。















































































