上海多格设计公司——某服装城整体改造提升深化设计案例、施工图深化图纸分享
上海/室内设计师/6年前/265浏览
版权
上海多格设计公司——某服装城整体改造提升深化设计案例、施工图深化图纸分享
上海多格设计拥有经验丰富的深化团队,团队主干成员出自金螳螂及国企设计院深化部门,专业专注!
上海多格设计公司——某服装城整体改造提升深化设计案例、施工图深化图纸分享
本案位于江苏常熟,商业面积22000平米,本次服务为一层的整个空间改造及地下一层功能区域的重新划分。
项目名称:江苏常熟服装城商业综合体(暂不公布项目名称)
项目面积:16000平米
服务范围:方案深化、装饰施工图深化
方案设计单位:某知名设计公司(暂不公布公司名称)
深化单位:上海多格设计





上海多格设计拥有经验丰富的深化团队,团队主干成员出自金螳螂及国企设计院深化部门,在商业综合体项目等大型项目的深化设计中拥有丰富的经验,专业的人做专业的事,我们以设计师的心态去做深化,将每一个项目细化至落地施工,用专业实力把控方案细节、图纸专业度、材质收口完美、控制造价预算、指导施工控制设计效果。
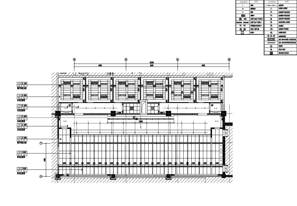
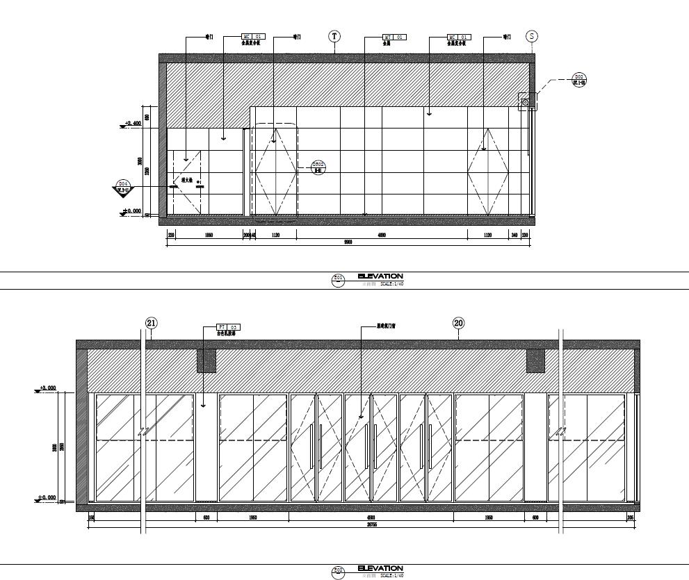
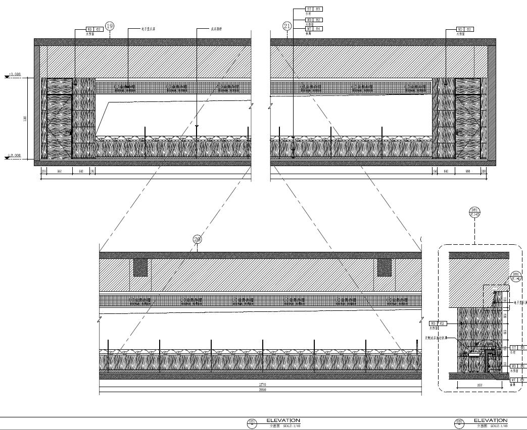
以下是该项目深化图纸的部分截图





1
Report
声明
收藏
Share
相关推荐
in to comment
Add emoji
喜欢TA的作品吗?喜欢就快来夸夸TA吧!
You may like
相关收藏夹
Log in
1Log in and synchronize recommended records
收藏Log in and add to My Favorites
评论Log in and comment your thoughts
分享Share















































































