海信贤文世家新中式风格家装设计案例
海信贤文世家新中式风格家装设计案例
海信贤文世家新中式风格家装设计案例
案例风 格:新中式风格
工程地 址:海信贤文世家二期
工程面 积:146平方
工程总造价:28.3万
基装预 算:6.3万
主材预 算:13万(马可瓷砖,爱家全屋定制,箭牌卫浴,奥普集成吊顶,维意石材,西蒙开关)
软装预 算:9万(春和景明家具,窗帘,亮美嘉灯具)
设计说明:
业主分析:
业主为50多岁的中年夫妇,从事房地产开发工作,平时工作比较忙碌繁杂,儿女都已成家单独生活。男业主受传统文化熏陶比较喜欢中式的元素,居住环境希望营造一种雅致安静的文化氛围,介于古典中式家具较于庞大笨重,不太符合业主简洁干练的设计需求,所以整体设计风格定为新中式。


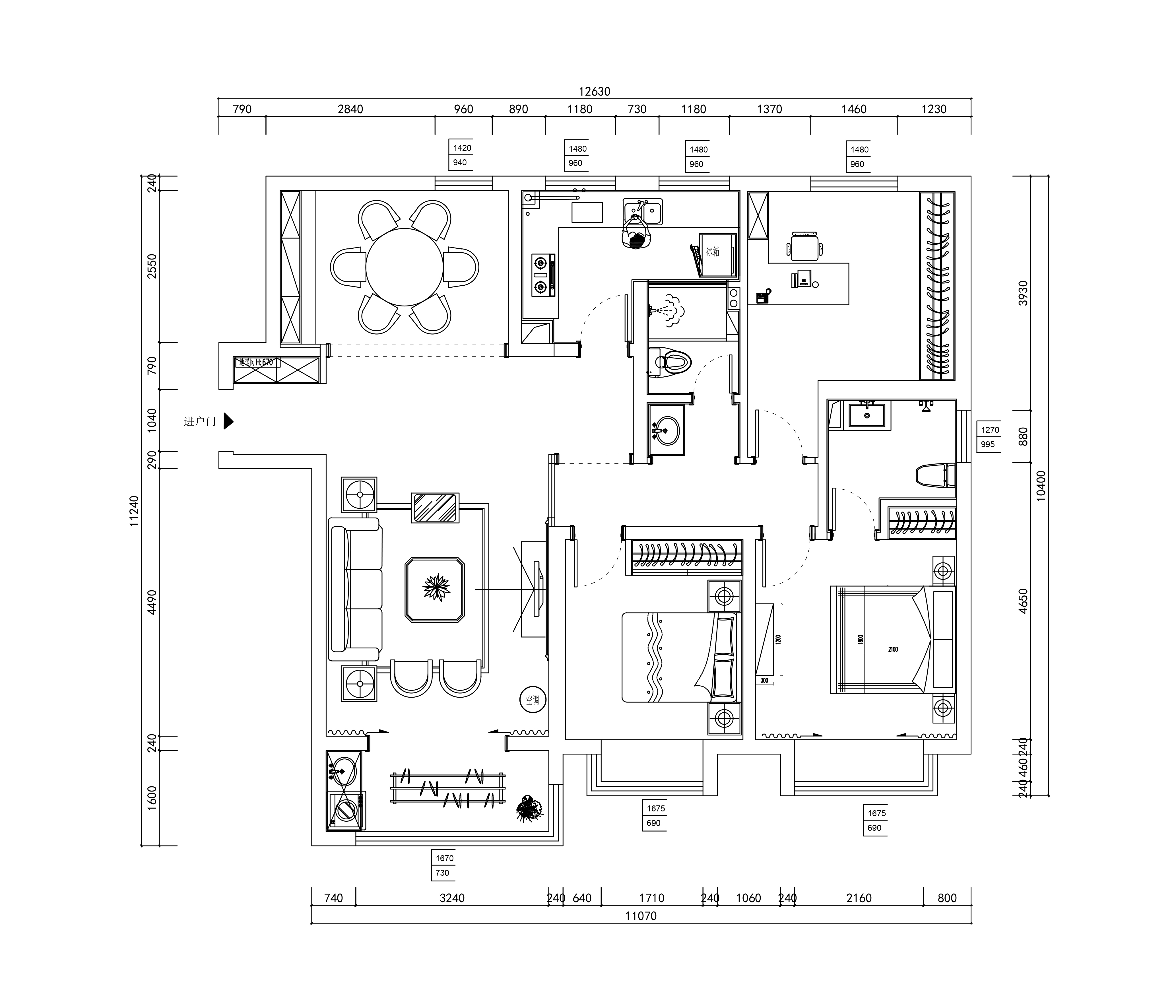
原始户型结构分析:
原始户型为四室两厅两卫一厨一阳台的设计构造,全明户型,结构方正,南北向空气对流不通畅,餐厅没有独立的区域,客厅两侧不对称,外走廊与内走廊错开造成空间浪费。北侧洗衣房功能布置不全是个鸡肋用处不大,厨房相对偏小计较紧凑。
方案设计说明:
本住宅是夫妇两人居住,四室用不了那么多房间,入户正对着餐桌也不太美观,所以把入户门口的北向房间打开当做独立的餐厅来使用,有了明确的玄关走廊,客厅,餐厅的区域空间,南北方向也会形成空气对流,整个空间布局就会敞亮大气很多。客厅影视墙比沙发背景墙短,不对称,处理方式是影视墙采用经典三段式造型,走廊一侧加出来一截,保证客厅开间宽敞的同时加长了客厅南北方向的长度,整个客厅就方正大气了很多。内廊外侧改变生活动线,也减少了双走廊的空间浪费。洗衣房去掉,纳入到厨房空间来使用,满足厨房冷藏存储收纳需求,洗切炒操作需求。洗衣机放到南阳台太阳能存水桶下面合理利用空间,洗衣,晒衣,方便工作。主卧室南北距离紧凑,把主卫的墙内推,衣柜门前侧和入室门平齐。加大了卧室南北方向的长度,床两侧的空间宽松了一些,整个空间就显得宽敞舒坦了很多。


玄关走廊:
独立的走廊空间连接各个功能区域,生活动线清晰明确,顶面吊顶造型和地面瓷砖铺贴造型上下相互呼应,划分出明确的客厅空间,走廊空间,餐厅空间,整个大空间张弛有度,既各自独立,又整体统一。
在外劳累工作一天,推开门把手中的包、外套随手放在鞋帽柜里,换上休闲鞋,轻松自在的居家状态在推开门的一刻扑面而来。摆脱喧嚣的尘世,浮躁的生活,找寻可以获得解脱的彼岸,这才是家。




客厅:
在暖灰卡色调的渲染铺陈之下,展现出低奢优雅的感官体验。而深色的家具又将空间打造得质感丰盈,使得整个空间沉稳又富有朝气。




餐厅:
餐厅的设计别有一番格调,由多种元素组合,形成精致与纯朴的碰撞,圆形吊顶与圆形餐桌上下呼应,协调统一,黑色描金的金属吊灯更显精致典雅的生活氛围,生机怏然的鲤鱼游来游去给悠闲的家居生活增添了几分乐趣。

主卧;
墙面浅咖色营造基础的温馨色调,搭配窗帘一抹亮色作为点缀,犹如平静湖水中泛起一片涟漪。
荣誉案例:
1997
济南万泰装饰成立
2002
加入上海装饰设计协会
2004
荣获山东省建筑业装饰企业十强
2005
顺利通过国家建筑装饰装修工程设计与施工一级资质省内通过质量、安全、环境三大体系认证的装饰企业
2006
中国建筑装饰行业奖——全国建筑工程装饰奖
2007
装饰装修质量奖“泉城杯”
2008
评为“重合同守信用企业”济南工装质量奖“泉城杯”搜狐网中国建筑装饰协会济南最具设计实力装饰公司奖
2009
评为“重合同守信用企业”济南工装质量奖“泉城杯”中国建筑装饰行业百强企业
2010
评为“重合同守信用企业”济南工装质量奖“泉城杯”
2011
评为“重合同守信用企业”济南工装质量奖“泉城杯”搜狐网“年度最具城市价值品牌”
2012
评为“重合同守信用企业”济南工装质量奖“泉城杯”中国建筑装饰协会知名品牌企业
2013
评为“重合同守信用企业”济南工装质量奖“泉城杯”中国建筑装饰设计机构百强企业
济南万泰装饰:泉城家装领军品牌
济南万泰装饰集团简介:【0531-66666386】
1)、成立于1997年,注册资金1000万元;
2)、具有国家设计、施工双一级资质;
3)、下设房地产开发、装饰设计施工、建筑设计等3大业务模块,房地产开发的项目有盈峰翠邸、龙湾别墅;
4)、2005年度装饰装修工程质量“泰山杯”,2006年荣获中国建筑装饰行业奖——“全国建筑工程装饰奖”;
5)、2006年被济南市装饰协会列为副会长单位,董事长赵继清先生当选为济南装饰协会副会长;
6)、通过ISO9001质量管理体系、ISO14001环境管理体系、OHSMS18001职业健康安全管理体系三大认证;
7)、全省一家20万质量保证金发起单位。济南市在市装协交纳质量保证金的单位;
万泰家装简介:
家装总部坐落于英雄山路188号。总部占地12000平米,是集样板间、家装设计中心、家居材料展示为一体的完整家居馆,是泉城的整体家居体验馆。自2000年开始家装业务以来,累计服务泉城客户60000余户,其中回头客占了相当大的比例。2012年济南万泰装饰更实现了100%数字化管理。十多年来,公司在装饰协会,消费者协会投诉率为零。而且是连续多年济南家装质量奖——“泉城杯”得主。
济南济南万泰装饰设计有限公司总部坐落于英雄山路188号。总部占地12000平米,是集样板间、家装设计中心、家居材料展示、智能家居、成品定制为一体的完整家居馆,是泉城较大的整体家居体验馆。自2000年开始家装业务以来,累计服务泉城客户10000余户,其中回头客占了相当大的比例。2012年更实现了100%数字化管理。十多年来,公司在装饰协会,消费者协会投诉率为零。而且是连续多年济南家装质量奖——“泉城杯”得主。
※ 山东保证金制度家装公司
2004年公司将20万质量保证金汇入市装协指定帐户,由协会专门组成的办公室进行管理,这个保证金的作用就是业主如认为万泰的装修有质量问题的,可与万泰协商,若协商不成可向质量保证金管理办公室投诉,管理办公室即委托济南市质量监督部门检测,凡经检测确定为质量事故并确定赔偿金额的,管理办公室立即先行赔付!截止目前成为山东建立质量保证金制度的家装公司,并在此制度实施的六年过程中,实现政府零投诉。
※ 优质的设计服务团队
公司拥有省内的设计师团队,而且设计师每个季度都会到上海、北京进行短期培训学习。并要求每位设计师对每一位选择万泰的客户都必须提供原创设计服务,客户需要的每一处细节都要在图中予以体现。坚决不允许出现象其他公司那样利用客户想迅速看到效果图的心理,而专门靠找图或贴图来误导欺骗客户,以达到快速签单的目的,等开工后客户才会发现原来还有很多问题没有考虑到,从而不断追加预算。
※ 管理体系标准化
济南万泰装饰是设计,工程施工,家居配饰的整体化服务,以风格,家居需求为出发点,全面规划客户家居生活。
选择万泰完整家居的优势:“3优4省1保障”。
ERP管理系统,从咨询、设计、施工、配饰、保修、售后,每个环节监控准确,责任明确,细节一丝不苟实施到位。
※ 施工透明化
为了让业主的家装工程更加安全有保障,率先推出了“装修免费送隐蔽工程验收光盘”,特别将家庭水电隐蔽工程中的关键部位留出检查口,并将家装水电隐蔽工程验收过程进行摄影,精心编辑制成光盘,在工程竣工后免费送给客户,将整个隐蔽工程全透明的展现在客户面前。所有客户都可以通过光盘对济南万泰装饰家庭装修的质量和各个关键节点,对隐蔽环节的线路走法以及用材做到有据可查,防患于未然。
※ 全球家居环保材料
2010年,济南万泰装饰对施工材料全面升级,将“欧洲生态工艺体系”导入万泰,与全球众多建筑原材料供应商携手,建立起完善的生态级家装原材料供应链,配合八大核心生态工艺,为你打造绿色环保的家居。
※ 环保建材同步欧洲
我们持续地更新我们的材料,陆续和国际一线的环保建材品牌接洽,挑战环保的极限。我们结合以往的施工经验,不断地运用新型的装饰工具,采用科学的施工方法,追求的室内家居装饰效果。














































































